Перейти к контенту
Подбор и сравнение проектов домов от застройщиков Московской области
Подборщик домов
Калькулятор сметы
Калькулятор площади
Форум
Блог
Главная
›
Каталог проектов
›
Проект G-509-1P
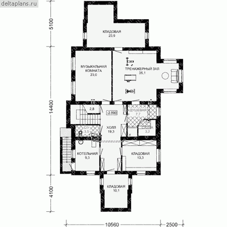
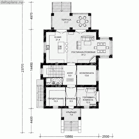
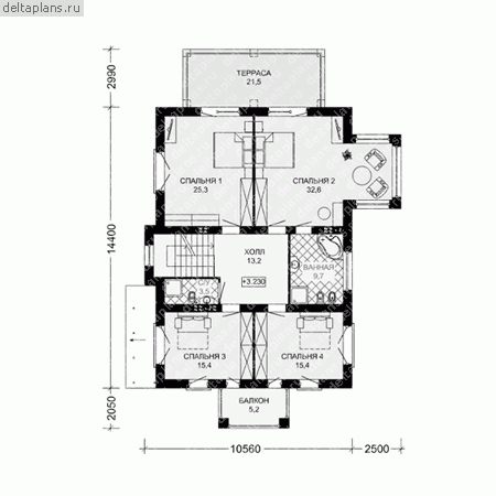
Проект G-509-1P
Застройщик: Юникс-Строй
508.9 м²
1 / 5
🏠
508.9 м²
📐
3 этаж
🧱
Пеноблок
Похожие проекты
Похожие по цене
Похожие по площади
Проект N-435-1K
3 этаж
от 35 670 000 ₽
→
Проект двухэтажного каркасного дома "Солнце"
5 спальн. · 2 этаж
от 35 536 793 ₽
→
Дом по проекту «ЗС 20-17» - Золотое Сечение
6 спальн. · 4 санузл.
от 35 750 000 ₽
→
ПД - 509 - Строительство домов из Каркаса, СИП, Бруса под ключ
6 спальн. · 3 санузл. · 2 этаж
от 12 600 000 ₽
→
Проект «Montreal»
5 спальн. · 3 санузл.
от 25 500 000 ₽
→
Проект «Montreal»
5 спальн. · 3 санузл. · 2 этаж
от 25 500 000 ₽
→
На сайт застройщика