Перейти к контенту
Подбор и сравнение проектов домов от застройщиков Московской области
Подборщик домов
Калькулятор сметы
Калькулятор площади
Форум
Блог
Главная
›
Каталог проектов
›
Проект G-820-1K
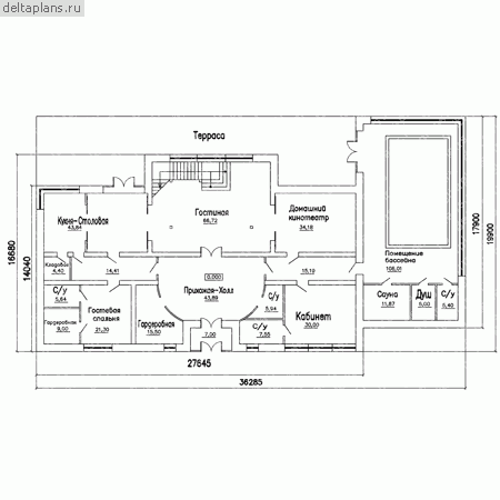
Проект G-820-1K
Застройщик: Юникс-Строй
820.26 м²
1 / 3
🏠
820.26 м²
📐
2 этаж
🧱
Кирпич
Похожие проекты
Похожие по цене
Похожие по площади
Дом по проекту «ЗС 900-21» - Золотое Сечение
3 спальн. · 4 санузл.
от 67 000 000 ₽
→
Проект E-831-1K
3 этаж
от 68 191 200 ₽
→
Проект M-801-1K
3 этаж
от 65 686 920 ₽
→
Дом Руза из газобетона: заказать в Москве по низкой цене
6 санузл. · 2 этаж
от 30 400 000 ₽
→
Дом Руза из кирпича: заказать в Москве по низкой цене
6 санузл. · 2 этаж
от 30 400 000 ₽
→
Проект двухэтажного коттежда "Зеленый городок" из газобетона
6 спальн. · 3 этаж
от 22 104 000 ₽
→
На сайт застройщика