Перейти к контенту
Подбор и сравнение проектов домов от застройщиков Московской области
Подборщик домов
Калькулятор сметы
Калькулятор площади
Форум
Блог
Главная
›
Каталог проектов
›
Проект H-145-1P
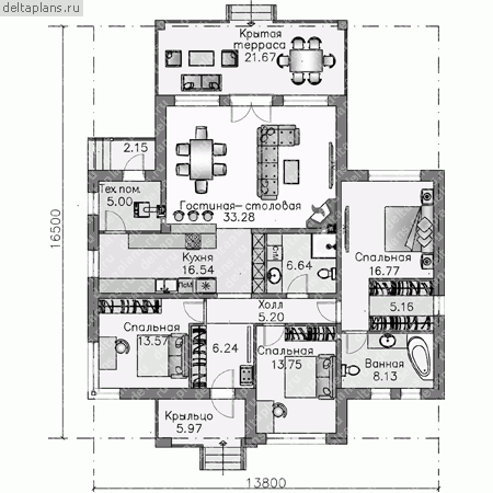
Проект H-145-1P
Застройщик: Юникс-Строй
136.89 м²
1 / 2
🏠
136.89 м²
📐
1 этаж
🧱
Пеноблок
Похожие проекты
Похожие по цене
Похожие по площади
Проект W-117-1K
2 этаж
от 9 585 800 ₽
→
Проект каркасного дома с мансардой Бавария 2 XL под ключ от компании БАКО
4 спальн. · 3 санузл. · 2 этаж
от 9 588 000 ₽
→
Кирпичный дом С-206 К «Киприда»
5 спальн. · 2 санузл. · 2 этаж
от 9 591 000 ₽
→
Проект дома из газоблоков 15х13 ГББ-136: цена 8596000 руб.
3 спальн. · 2 санузл. · 1 этаж
от 9 481 000 ₽
→
Проект дома из керамоблоков 15х15 ТКБ-136: цена 9099000 руб.
3 спальн. · 2 санузл. · 1 этаж
от 10 347 000 ₽
→
Проект D-137-1D
3 этаж
от 20 539 500 ₽
→
На сайт застройщика