Перейти к контенту
Подбор и сравнение проектов домов от застройщиков Московской области
Подборщик домов
Калькулятор сметы
Калькулятор площади
Форум
Блог
Главная
›
Каталог проектов
›
Проект H-149-1P
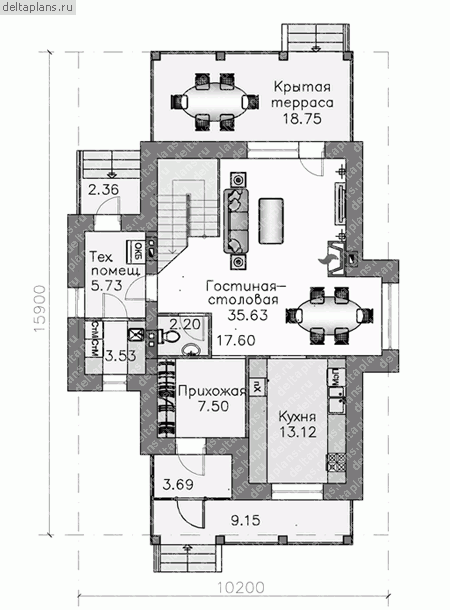
Проект H-149-1P
Застройщик: Юникс-Строй
149.3 м²
1 / 3
🏠
149.3 м²
📐
2 этаж
🧱
Пеноблок
Похожие проекты
Похожие по цене
Похожие по площади
Проект G-149-1P
2 этаж
от 10 451 000 ₽
→
Проект J-149-1P
2 этаж
от 10 451 000 ₽
→
Проект U-149-1P
1 этаж
от 10 449 600 ₽
→
Проект G-149-1P
2 этаж
от 10 451 000 ₽
→
Проект J-149-1P
2 этаж
от 10 451 000 ₽
→
Проект U-149-1P
1 этаж
от 10 449 600 ₽
→
На сайт застройщика