Перейти к контенту
Подбор и сравнение проектов домов от застройщиков Московской области
Подборщик домов
Калькулятор сметы
Калькулятор площади
Форум
Блог
Главная
›
Каталог проектов
›
Проект H-306-1K
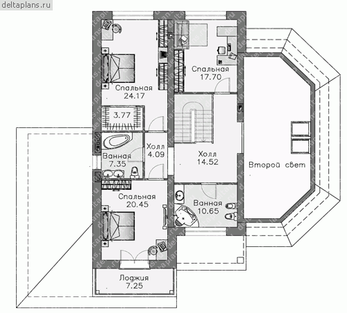
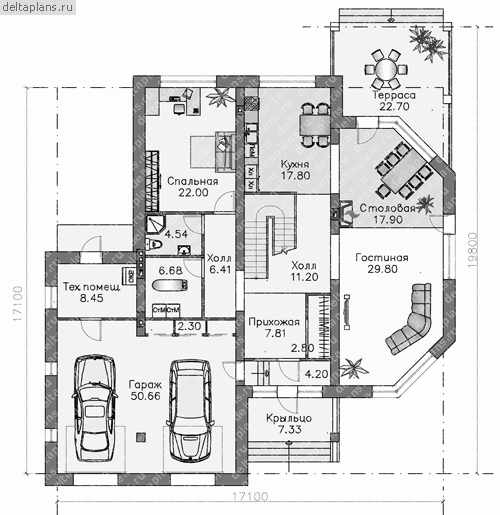
Проект H-306-1K
Застройщик: Юникс-Строй
306.5 м²
1 / 3
🏠
306.5 м²
📐
2 этаж
🧱
Кирпич
Похожие проекты
Похожие по цене
Похожие по площади
Проект H-395-1P
3 этаж
от 25 136 300 ₽
→
Двухэтажный дом «Гринвилл» со вторым светом
3 спальн. · 2 санузл. · 2 этаж
от 25 140 000 ₽
→
Проект G-181-1D
2 этаж
от 25 125 000 ₽
→
Проект H-306-1P
3 этаж
от 21 450 800 ₽
→
Маршал 5
8 спальн. · 3 санузл. · 2 этаж
от 10 675 000 ₽
→
Маршал 5
8 спальн. · 3 санузл. · 2 этаж
от 10 675 000 ₽
→
На сайт застройщика