Перейти к контенту
Подбор и сравнение проектов домов от застройщиков Московской области
Подборщик домов
Калькулятор сметы
Калькулятор площади
Форум
Блог
Главная
›
Каталог проектов
›
Проект H-377-1K
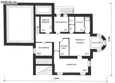
Проект H-377-1K
Застройщик: Юникс-Строй
377.3 м²
1 / 4
🏠
377.3 м²
📐
3 этаж
🧱
Кирпич
Похожие проекты
Похожие по цене
Похожие по площади
Современный коттедж «Манхэттен»
4 спальн. · 5 санузл. · 2 этаж
от 30 978 000 ₽
→
Проект L-378-1K
3 этаж
от 30 996 000 ₽
→
Дом по проекту «ЗС 16-17» - Золотое Сечение
4 спальн. · 3 санузл.
от 31 000 000 ₽
→
Проект U-377-1D
2 этаж
от 56 622 000 ₽
→
Проект «Grossville»
3 спальн. · 3 санузл.
от 18 850 000 ₽
→
Проект «Grossville»
3 спальн. · 3 санузл.
от 18 850 000 ₽
→
На сайт застройщика