Перейти к контенту
Подбор и сравнение проектов домов от застройщиков Московской области
Подборщик домов
Калькулятор сметы
Калькулятор площади
Форум
Блог
Главная
›
Каталог проектов
›
Проект I-289-1K
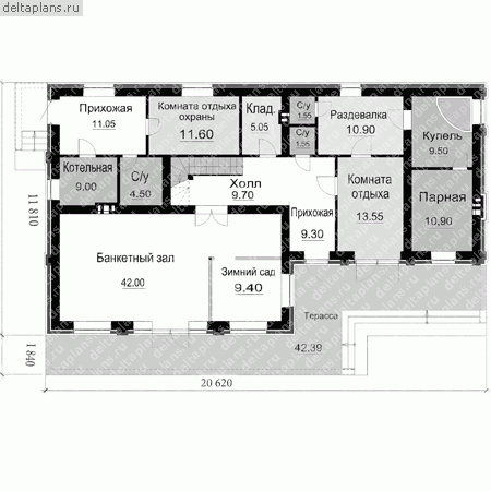
Проект I-289-1K
Застройщик: Юникс-Строй
289.33 м²
1 / 3
🏠
289.33 м²
📐
2 этаж
🧱
Кирпич
Похожие проекты
Похожие по цене
Похожие по площади
Проект «Seville»
от 23 715 000 ₽
→
Проект «Seville»
от 23 715 000 ₽
→
Дом по проекту «ЗС 39-16» - Золотое Сечение
4 спальн. · 2 санузл.
от 23 750 000 ₽
→
Проект дома «Венс»
5 спальн. · 2 этаж
от 12 837 000 ₽
→
Дом 5 спален второй свет №347
2 этаж
от 11 919 700 ₽
→
Проект 5 спален второй свет №347
2 этаж
от 11 919 700 ₽
→
На сайт застройщика