Перейти к контенту
Подбор и сравнение проектов домов от застройщиков Московской области
Подборщик домов
Калькулятор сметы
Калькулятор площади
Форум
Блог
Главная
›
Каталог проектов
›
Проект J-281-1K
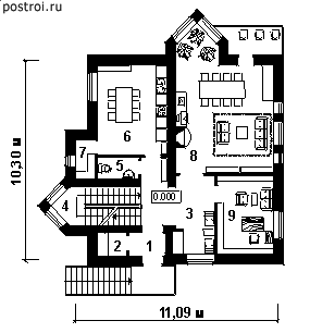
Проект J-281-1K
Застройщик: Юникс-Строй
280.9 м²
1 / 4
🏠
280.9 м²
📐
3 этаж
🧱
Кирпич
Похожие проекты
Похожие по цене
Похожие по площади
Дом Конаково из газобетона: заказать в Москве по низкой цене
3 спальн. · 5 санузл. · 2 этаж
от 23 040 000 ₽
→
Дом Конаково из кирпича: заказать в Москве по низкой цене
3 спальн. · 5 санузл. · 2 этаж
от 23 040 000 ₽
→
Проект D-149-1D
2 этаж
от 23 064 000 ₽
→
Проект дома «Тор»
4 спальн. · 2 этаж
от 13 315 000 ₽
→
А-003
5 спальн. · 3 санузл. · 1 этаж
от 21 200 000 ₽
→
Проект двухэтажного дома "Авиньон" из бруса
5 спальн. · 2 этаж
от 17 926 386 ₽
→
На сайт застройщика