Перейти к контенту
Подбор и сравнение проектов домов от застройщиков Московской области
Подборщик домов
Калькулятор сметы
Калькулятор площади
Форум
Блог
Главная
›
Каталог проектов
›
Проект J-409-1K
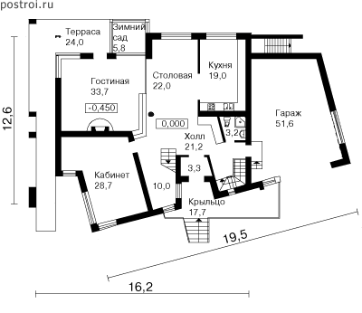
Проект J-409-1K
Застройщик: Юникс-Строй
408.9 м²
1 / 4
🏠
408.9 м²
📐
3 этаж
🧱
Кирпич
Похожие проекты
Похожие по цене
Похожие по площади
Проект N-409-1K
2 этаж
от 33 490 440 ₽
→
Проект U-408-1K
3 этаж
от 33 472 400 ₽
→
Проект E-408-1K
2 этаж
от 33 464 200 ₽
→
Проект M-409-1P
3 этаж
от 28 616 000 ₽
→
Проект U-402-1P
2 этаж
от 28 616 000 ₽
→
Проект K-409-1P
3 этаж
от 28 651 000 ₽
→
На сайт застройщика