Перейти к контенту
Подбор и сравнение проектов домов от застройщиков Московской области
Подборщик домов
Калькулятор сметы
Калькулятор площади
Форум
Блог
Главная
›
Каталог проектов
›
Проект J-446-1K
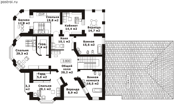
Проект J-446-1K
Застройщик: Юникс-Строй
446.4 м²
1 / 3
🏠
446.4 м²
📐
2 этаж
🧱
Кирпич
Похожие проекты
Похожие по цене
Похожие по площади
Проект J-447-1K
3 этаж
от 36 629 400 ₽
→
Проект M-446-1K
3 этаж
от 36 572 000 ₽
→
Проект R-446-1K
3 этаж
от 36 572 000 ₽
→
Проект J-447-1K
3 этаж
от 36 629 400 ₽
→
Проект M-446-1K
3 этаж
от 36 572 000 ₽
→
Проект R-446-1K
3 этаж
от 36 572 000 ₽
→
На сайт застройщика