Перейти к контенту
Подбор и сравнение проектов домов от застройщиков Московской области
Подборщик домов
Калькулятор сметы
Калькулятор площади
Форум
Блог
Главная
›
Каталог проектов
›
Проект J-482-1K
Проект J-482-1K
Застройщик: Юникс-Строй
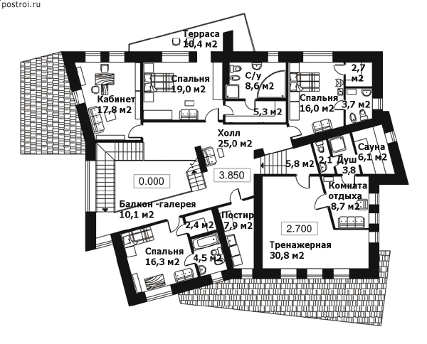
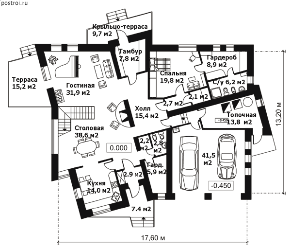
482.1 м²
1 / 4
🏠
482.1 м²
📐
3 этаж
🧱
Кирпич
Похожие проекты
Похожие по цене
Похожие по площади
Проект M-482-1K
3 этаж
от 39 524 000 ₽
→
Проект U-482-1K
3 этаж
от 39 588 780 ₽
→
Проект W-482-1K
3 этаж
от 39 589 600 ₽
→
Проект M-482-1K
3 этаж
от 39 524 000 ₽
→
Большой двухэтажный дом «Кирктон» в стиле Модерн
6 спальн. · 4 санузл. · 2 этаж
от 28 914 000 ₽
→
Проект U-482-1P
3 этаж
от 33 789 700 ₽
→
На сайт застройщика