Перейти к контенту
Подбор и сравнение проектов домов от застройщиков Московской области
Подборщик домов
Калькулятор сметы
Калькулятор площади
Форум
Блог
Главная
›
Каталог проектов
›
Проект J-526-1K
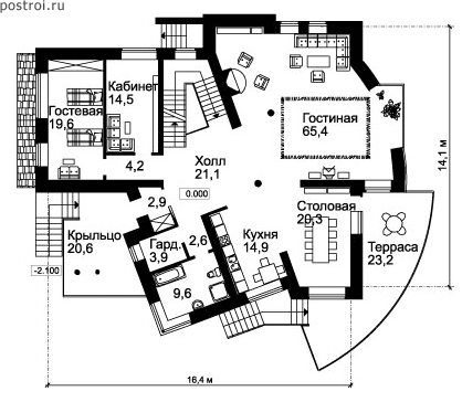
Проект J-526-1K
Застройщик: Юникс-Строй
525.8 м²
1 / 4
🏠
525.8 м²
📐
3 этаж
🧱
Кирпич
Похожие проекты
Похожие по цене
Похожие по площади
Проект U-524-1K
3 этаж
от 42 968 000 ₽
→
Проект «Davis»
от 43 350 000 ₽
→
Проект дома K-612-1P
2 этаж
от 42 840 000 ₽
→
Современный дом с цокольным этажом «Дюрен»
3 спальн. · 4 санузл. · 1 этаж
от 31 596 000 ₽
→
Проект дома «Мормонт» с цоколем
7 спальн. · 2 этаж
от 24 851 000 ₽
→
Проект U-524-1K
3 этаж
от 42 968 000 ₽
→
На сайт застройщика