Перейти к контенту
Подбор и сравнение проектов домов от застройщиков Московской области
Подборщик домов
Калькулятор сметы
Калькулятор площади
Форум
Блог
Главная
›
Каталог проектов
›
Проект K-398-1K
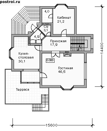
Проект K-398-1K
Застройщик: Юникс-Строй
398.0 м²
1 / 4
🏠
398.0 м²
📐
3 этаж
🧱
Кирпич
Похожие проекты
Похожие по цене
Похожие по площади
Современный дом с плоской крышей «Гент»
5 спальн. · 6 санузл. · 2 этаж
от 32 628 000 ₽
→
Дом по проекту «ЗС 198-24» - Золотое Сечение
4 спальн. · 4 санузл.
от 32 625 000 ₽
→
Дом по проекту «ЗС 928-21» - Золотое Сечение
3 спальн. · 3 санузл.
от 32 625 000 ₽
→
Проект дома «Medford»
3 спальн. · 4 санузл.
от 19 910 000 ₽
→
Проект дома «Medford»
3 спальн. · 4 санузл.
от 19 910 000 ₽
→
Одноэтажный коттедж «Медфорд» с большой террасой
3 спальн. · 4 санузл. · 1 этаж
от 23 892 000 ₽
→
На сайт застройщика