Перейти к контенту
Подбор и сравнение проектов домов от застройщиков Московской области
Подборщик домов
Калькулятор сметы
Калькулятор площади
Форум
Блог
Главная
›
Каталог проектов
›
Проект L-127-1P
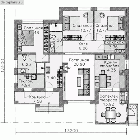
Проект L-127-1P
Застройщик: Юникс-Строй
127.9 м²
1 / 2
🏠
127.9 м²
📐
1 этаж
🧱
Пеноблок
Похожие проекты
Похожие по цене
Похожие по площади
Проект дома «Рич»
4 спальн. · 2 этаж
от 8 951 000 ₽
→
Проект дома «Хорн»
4 спальн. · 2 этаж
от 8 951 000 ₽
→
Проект U-128-1P
2 этаж
от 8 960 000 ₽
→
Проект одноэтажного коттеджа "Рябушка" из газобетона
2 спальн. · 2 этаж
от 7 392 000 ₽
→
Проект двухэтажного дома "Уголок 9х10" из бруса
2 этаж
от 7 865 125 ₽
→
Проект одноэтажного дома "Красная Шапочка" из бруса
4 спальн. · 2 этаж
от 10 782 259 ₽
→
На сайт застройщика