Перейти к контенту
Подбор и сравнение проектов домов от застройщиков Московской области
Подборщик домов
Калькулятор сметы
Калькулятор площади
Форум
Блог
Главная
›
Каталог проектов
›
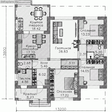
Проект L-164-1P
Проект L-164-1P
Застройщик: Юникс-Строй
129.05 м²
1 / 2
🏠
129.05 м²
📐
1 этаж
🧱
Пеноблок
Похожие проекты
Похожие по цене
Похожие по площади
Кирпичный дом С-179 К «Бьерн»
3 спальн. · 2 санузл. · 3 этаж
от 9 032 000 ₽
→
Проект N-129-1P
2 этаж
от 9 031 400 ₽
→
Проект дома «Бойд»
3 спальн. · 1 этаж
от 9 037 000 ₽
→
Проект N-129-1P
2 этаж
от 9 031 400 ₽
→
Проект дома G-129-1P
2 этаж
от 9 037 000 ₽
→
Проект двухэтажного каркасного дома "Европа"
4 спальн. · 2 этаж
от 9 767 007 ₽
→
На сайт застройщика