Перейти к контенту
Подбор и сравнение проектов домов от застройщиков Московской области
Подборщик домов
Калькулятор сметы
Калькулятор площади
Форум
Блог
Главная
›
Каталог проектов
›
Проект L-179-1P
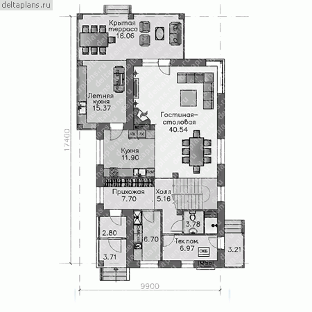
Проект L-179-1P
Застройщик: Юникс-Строй
179.7 м²
1 / 3
🏠
179.7 м²
📐
2 этаж
🧱
Пеноблок
Похожие проекты
Похожие по цене
Похожие по площади
Проект дома «Дуб» | ЭкоТех
5 спальн. · 3 санузл. · 2 этаж
от 12 579 000 ₽
→
Проект одноэтажного дома "Песочный" из бруса
3 спальн. · 2 этаж
от 12 579 617 ₽
→
Проект одноэтажного коттеджа "Ла Каса - 2" из бруса
5 спальн. · 3 этаж
от 12 576 568 ₽
→
Проект одноэтажного коттеджа "Форэст" из бруса
4 спальн. · 2 этаж
от 13 840 626 ₽
→
Проект одноэтажного дома "Добротный" из бруса
2 спальн. · 1 этаж
от 13 200 597 ₽
→
Проект дома из газоблоков 13х14 ГББ-180: цена 9079000 руб.
5 спальн. · 3 санузл. · 2 этаж
от 13 782 000 ₽
→
На сайт застройщика