Перейти к контенту
Подбор и сравнение проектов домов от застройщиков Московской области
Подборщик домов
Калькулятор сметы
Калькулятор площади
Форум
Блог
Главная
›
Каталог проектов
›
Проект L-218-1P
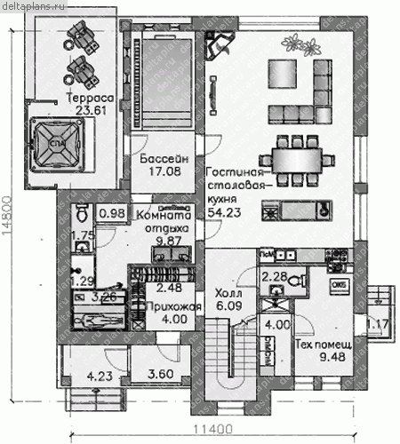
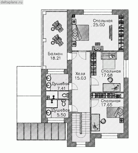
Проект L-218-1P
Застройщик: Юникс-Строй
218.7 м²
1 / 3
🏠
218.7 м²
📐
2 этаж
🧱
Пеноблок
Похожие проекты
Похожие по цене
Похожие по площади
Проект G-221-2P
2 этаж
от 15 309 000 ₽
→
Вилла в стиле американская классика «VIRLAD»
3 спальн. · 3 санузл. · 1 этаж
от 15 312 000 ₽
→
Проект V-219-1P
2 этаж
от 15 304 800 ₽
→
Проект G-221-2P
2 этаж
от 15 309 000 ₽
→
Проект V-219-1P
2 этаж
от 15 304 800 ₽
→
Проект R-218-1P
2 этаж
от 15 299 900 ₽
→
На сайт застройщика