Перейти к контенту
Подбор и сравнение проектов домов от застройщиков Московской области
Подборщик домов
Калькулятор сметы
Калькулятор площади
Форум
Блог
Главная
›
Каталог проектов
›
Проект L-291-1P
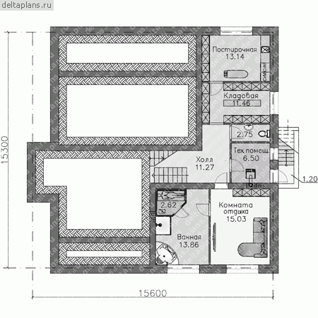
Проект L-291-1P
Застройщик: Юникс-Строй
291.1 м²
1 / 4
🏠
291.1 м²
📐
3 этаж
🧱
Пеноблок
Похожие проекты
Похожие по цене
Похожие по площади
Дом по проекту «ЗС 19-17-2» - Золотое Сечение
3 спальн. · 2 санузл.
от 20 375 000 ₽
→
Дом по проекту «ЗС 238-24» - Золотое Сечение
3 спальн. · 3 санузл.
от 20 375 000 ₽
→
Дом по проекту «ЗС 785-20» - Золотое Сечение
4 спальн. · 2 санузл.
от 20 375 000 ₽
→
Проект G-291-1D
4 санузл. · 2 этаж
от 43 680 000 ₽
→
Проект К-172 14 на 11, площадью 291 за 9 820 500 руб
4 спальн. · 2 этаж
от 9 820 500 ₽
→
Проект К-172 14 на 11, площадью 291 за 9 820 500 руб
4 спальн. · 2 этаж
от 8 148 000 ₽
→
На сайт застройщика