Перейти к контенту
Подбор и сравнение проектов домов от застройщиков Московской области
Подборщик домов
Калькулятор сметы
Калькулятор площади
Форум
Блог
Главная
›
Каталог проектов
›
Проект M-105-1S
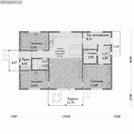
Проект M-105-1S
Застройщик: Юникс-Строй
104.69 м²
1 / 2
🏠
104.69 м²
📐
1 этаж
🧱
Каркас
Похожие проекты
Похожие по цене
Похожие по площади
ПД - 104 - Строительство домов из Каркаса, СИП, Бруса под ключ
2 этаж
от 2 060 000 ₽
→
ПД - 40 - Строительство домов из Каркаса, СИП, Бруса под ключ
1 этаж
от 2 060 000 ₽
→
ПД - 77 - Строительство домов из Каркаса, СИП, Бруса под ключ
2 этаж
от 2 060 000 ₽
→
Проект E-104-1K
2 этаж
от 8 585 400 ₽
→
Проект E-105-1D
1 этаж
от 15 705 000 ₽
→
Проект одноэтажного коттеджа "Чешский"
4 спальн. · 2 этаж
от 6 240 000 ₽
→
На сайт застройщика