Перейти к контенту
Подбор и сравнение проектов домов от застройщиков Московской области
Подборщик домов
Калькулятор сметы
Калькулятор площади
Форум
Блог
Главная
›
Каталог проектов
›
Проект M-117-1D
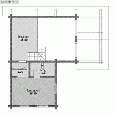
Проект M-117-1D
Застройщик: Юникс-Строй
117.75 м²
1 / 3
🏠
117.75 м²
📐
2 этаж
🧱
Дерево
Похожие проекты
Похожие по цене
Похожие по площади
Проект двухэтажного коттеджа "Осенний поцелуй" из газобетона
2 этаж
от 17 668 000 ₽
→
Проект J-108-1D
3 этаж
от 17 677 500 ₽
→
Проект дома из керамоблоков 12х18 ТКБ-245: цена 10134000 руб.
4 спальн. · 3 санузл. · 2 этаж
от 17 680 000 ₽
→
Проект V-117-1P
2 этаж
от 8 242 500 ₽
→
Проект W-118-1K
2 этаж
от 9 659 600 ₽
→
Проект двухэтажного дома "Форпост-2" из бруса
2 спальн. · 3 этаж
от 10 240 236 ₽
→
На сайт застройщика