Перейти к контенту
Подбор и сравнение проектов домов от застройщиков Московской области
Подборщик домов
Калькулятор сметы
Калькулятор площади
Форум
Блог
Главная
›
Каталог проектов
›
Проект M-137-1D
Проект M-137-1D
Застройщик: Юникс-Строй
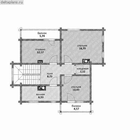
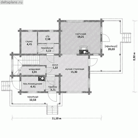
137.06 м²
1 / 3
🏠
137.06 м²
📐
2 этаж
🧱
Дерево
Похожие проекты
Похожие по цене
Похожие по площади
Современный коттедж с двухскатной крышей «Бакор»
4 спальн. · 4 санузл. · 2 этаж
от 20 568 000 ₽
→
Проект R-258-1K
2 этаж
от 20 574 620 ₽
→
Проект D-137-1D
3 этаж
от 20 539 500 ₽
→
Проект каркасного дома КП-109
1 этаж
от 11 000 000 ₽
→
Проект одноэтажного дома "Густав-2" из бруса
3 спальн. · 2 этаж
от 10 407 053 ₽
→
Проект одноэтажного коттеджа "Уютность" из газобетона
4 спальн. · 2 этаж
от 11 210 000 ₽
→
На сайт застройщика