Перейти к контенту
Подбор и сравнение проектов домов от застройщиков Московской области
Подборщик домов
Калькулятор сметы
Калькулятор площади
Форум
Блог
Главная
›
Каталог проектов
›
Проект M-143-1D
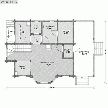
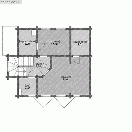
Проект M-143-1D
Застройщик: Юникс-Строй
142.58 м²
1 / 3
🏠
142.58 м²
📐
2 этаж
🧱
Дерево
Похожие проекты
Похожие по цене
Похожие по площади
Проект K-261-1K
3 этаж
от 21 402 000 ₽
→
Проект U-261-1K
2 этаж
от 21 356 080 ₽
→
Проект K-306-1P
3 этаж
от 21 420 000 ₽
→
Проект одноэтажного дома "Ависсо" из бревна
1 спальн. · 1 этаж
от 8 314 682 ₽
→
Проект U-142-1P
3 этаж
от 9 984 800 ₽
→
Проект каркасного дома с мансардой Бавария S+ под ключ от компании БАКО
3 спальн. · 2 санузл. · 2 этаж
от 6 530 600 ₽
→
На сайт застройщика