Перейти к контенту
Подбор и сравнение проектов домов от застройщиков Московской области
Подборщик домов
Калькулятор сметы
Калькулятор площади
Форум
Блог
Главная
›
Каталог проектов
›
Проект M-161-1K
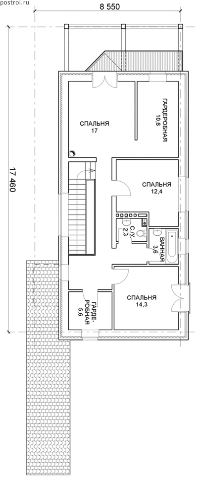
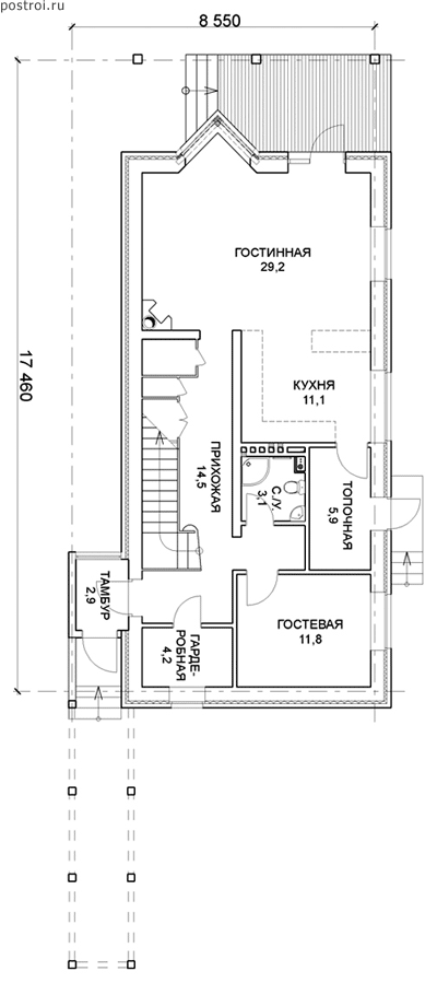
Проект M-161-1K
Застройщик: Юникс-Строй
161.0 м²
1 / 3
🏠
161.0 м²
📐
2 этаж
🧱
Кирпич
Похожие проекты
Похожие по цене
Похожие по площади
Проект W-161-1K
2 этаж
от 13 202 000 ₽
→
Проект двухэтажного дома "Дворянское гнездо с топочной" из бруса
5 спальн. · 2 этаж
от 13 200 597 ₽
→
Проект одноэтажного дома "Добротный" из бруса
2 спальн. · 1 этаж
от 13 200 597 ₽
→
Проект одноэтажного дома "Вознесенское" из бруса
3 спальн. · 2 этаж
от 14 334 912 ₽
→
Проект одноэтажного дома "Зеленогорский" из бруса
3 спальн. · 2 этаж
от 14 018 330 ₽
→
Проект одноэтажного дома "Изабелла" из бруса
4 спальн. · 2 этаж
от 11 585 748 ₽
→
На сайт застройщика