Перейти к контенту
Подбор и сравнение проектов домов от застройщиков Московской области
Подборщик домов
Калькулятор сметы
Калькулятор площади
Форум
Блог
Главная
›
Каталог проектов
›
Проект M-168-1K
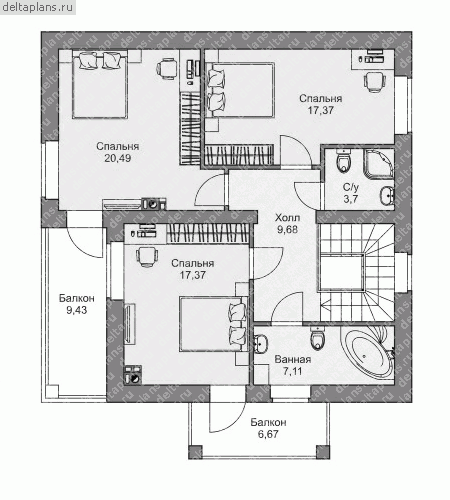
Проект M-168-1K
Застройщик: Юникс-Строй
167.99 м²
1 / 3
🏠
167.99 м²
📐
2 этаж
🧱
Кирпич
Похожие проекты
Похожие по цене
Похожие по площади
Проект дома из газоблоков 13х14 ГББ-180: цена 9079000 руб.
5 спальн. · 3 санузл. · 2 этаж
от 13 782 000 ₽
→
Проект одноэтажного коттеджа "Маленький принц-2" из газобетона
6 спальн. · 2 этаж
от 13 792 000 ₽
→
Проект дома «Байкал» | ЭкоТех
3 спальн. · 2 санузл. · 2 этаж
от 13 795 000 ₽
→
Проект одноэтажного дома "Слобода Подновье" из бруса
4 спальн. · 2 этаж
от 12 813 651 ₽
→
Дом по проекту «ЗС 336-18» - Золотое Сечение
3 спальн. · 2 санузл.
от 21 000 000 ₽
→
Дом по проекту «ЗС 419-19» - Золотое Сечение
5 спальн. · 2 санузл.
от 21 000 000 ₽
→
На сайт застройщика