Перейти к контенту
Подбор и сравнение проектов домов от застройщиков Московской области
Подборщик домов
Калькулятор сметы
Калькулятор площади
Форум
Блог
Главная
›
Каталог проектов
›
Проект M-172-1D
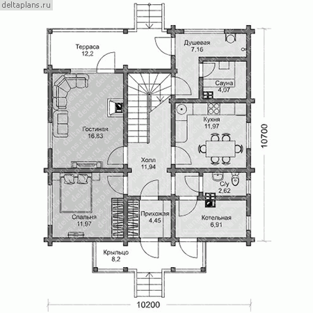
Проект M-172-1D
Застройщик: Юникс-Строй
172.82 м²
1 / 3
🏠
172.82 м²
📐
2 этаж
🧱
Дерево
Похожие проекты
Похожие по цене
Похожие по площади
Проект U-370-1P
2 этаж
от 25 915 400 ₽
→
Проект дома S-415-1P
3 этаж
от 25 900 000 ₽
→
Проект G-316-1K
3 этаж
от 25 953 000 ₽
→
Проект M-167-2P
2 этаж
от 12 096 000 ₽
→
Проект двухэтажного дома "Велес-3" из бруса
3 спальн. · 3 этаж
от 12 600 570 ₽
→
Проект L-173-1P
2 этаж
от 12 089 000 ₽
→
На сайт застройщика