Перейти к контенту
Подбор и сравнение проектов домов от застройщиков Московской области
Подборщик домов
Калькулятор сметы
Калькулятор площади
Форум
Блог
Главная
›
Каталог проектов
›
Проект M-187-1D
Проект M-187-1D
Застройщик: Юникс-Строй
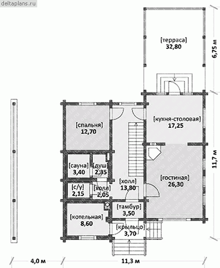
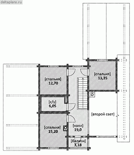
187.35 м²
1 / 3
🏠
187.35 м²
📐
2 этаж
🧱
Дерево
Похожие проекты
Похожие по цене
Похожие по площади
Проект «Darby»
5 спальн. · 6 санузл.
от 28 100 000 ₽
→
Проект D-187-1D
2 этаж
от 28 095 000 ₽
→
Дом по проекту «Вердер» - Золотое Сечение
3 спальн. · 2 санузл.
от 28 125 000 ₽
→
Проект U-188-1K
2 этаж
от 15 361 880 ₽
→
Проект D-187-1D
2 этаж
от 28 095 000 ₽
→
Проект W-187-1K
2 этаж
от 15 358 600 ₽
→
На сайт застройщика