Перейти к контенту
Подбор и сравнение проектов домов от застройщиков Московской области
Подборщик домов
Калькулятор сметы
Калькулятор площади
Форум
Блог
Главная
›
Каталог проектов
›
Проект M-189-1K
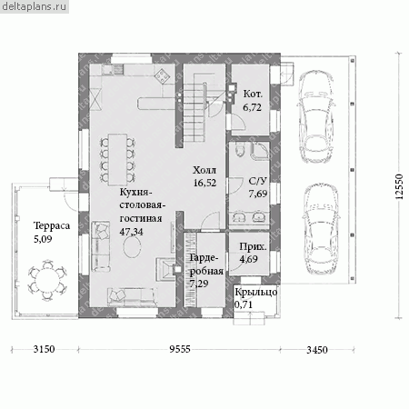
Проект M-189-1K
Застройщик: Юникс-Строй
188.59 м²
1 / 3
🏠
188.59 м²
📐
2 этаж
🧱
Кирпич
Похожие проекты
Похожие по цене
Похожие по площади
Проект A-221-1P
3 этаж
от 15 460 200 ₽
→
Проект дома V-221-1P
2 этаж
от 15 477 000 ₽
→
Дом из клееного бруса «Райт» | ЭкоТех
3 спальн. · 3 санузл. · 2 этаж
от 15 449 000 ₽
→
Проект дома «Рич»
4 спальн. · 2 этаж
от 8 951 000 ₽
→
Проект дома «Хорн»
4 спальн. · 2 этаж
от 8 951 000 ₽
→
Проект каркасного дома с мансардой Шале L под ключ от компании БАКО
4 спальн. · 2 санузл. · 2 этаж
от 7 950 100 ₽
→
На сайт застройщика