Перейти к контенту
Подбор и сравнение проектов домов от застройщиков Московской области
Подборщик домов
Калькулятор сметы
Калькулятор площади
Форум
Блог
Главная
›
Каталог проектов
›
Проект M-215-1D
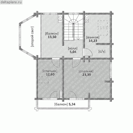
Проект M-215-1D
Застройщик: Юникс-Строй
215.68 м²
1 / 4
🏠
215.68 м²
📐
3 этаж
🧱
Дерево
Похожие проекты
Похожие по цене
Похожие по площади
Дом по проекту «ЗС 706-23» - Золотое Сечение
4 спальн. · 2 санузл.
от 32 375 000 ₽
→
Дом с бассейном на улице «Элмонт»
4 спальн. · 4 санузл. · 2 этаж
от 32 376 000 ₽
→
Проект D-216-1D
2 этаж
от 32 328 000 ₽
→
Проект U-215-1P
2 этаж
от 15 097 600 ₽
→
Проект U-216-1P
3 этаж
от 15 096 900 ₽
→
Проект одноэтажного дома "Патрик" из бруса
5 спальн. · 2 этаж
от 17 264 780 ₽
→
На сайт застройщика