Перейти к контенту
Подбор и сравнение проектов домов от застройщиков Московской области
Подборщик домов
Калькулятор сметы
Калькулятор площади
Форум
Блог
Главная
›
Каталог проектов
›
Проект M-219-1P
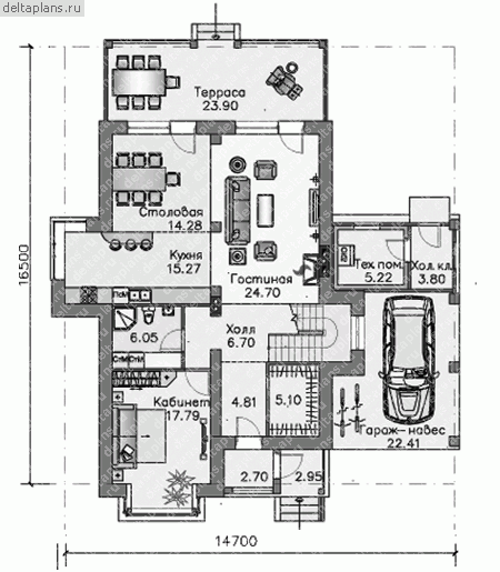
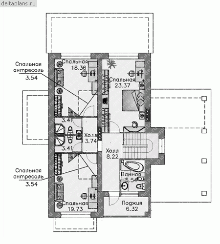
Проект M-219-1P
Застройщик: Юникс-Строй
219.6 м²
1 / 3
🏠
219.6 м²
📐
2 этаж
🧱
Пеноблок
Похожие проекты
Похожие по цене
Похожие по площади
Проект двухэтажного дома "Марсель" из бруса
5 спальн. · 2 этаж
от 15 369 495 ₽
→
Дом по проекту «ЗС 212-23» - Золотое Сечение
3 спальн. · 2 санузл.
от 15 375 000 ₽
→
Дом по проекту «ЗС 454-19» - Золотое Сечение
3 спальн. · 2 санузл.
от 15 375 000 ₽
→
Проект двухэтажного коттеджа "Раймонд" из газобетона
4 спальн. · 2 этаж
от 10 357 000 ₽
→
Проект S-220-1K
2 этаж
от 17 999 000 ₽
→
Проект дома N-221-1P
2 этаж
от 15 379 000 ₽
→
На сайт застройщика