Перейти к контенту
Подбор и сравнение проектов домов от застройщиков Московской области
Подборщик домов
Калькулятор сметы
Калькулятор площади
Форум
Блог
Главная
›
Каталог проектов
›
Проект M-234-1P
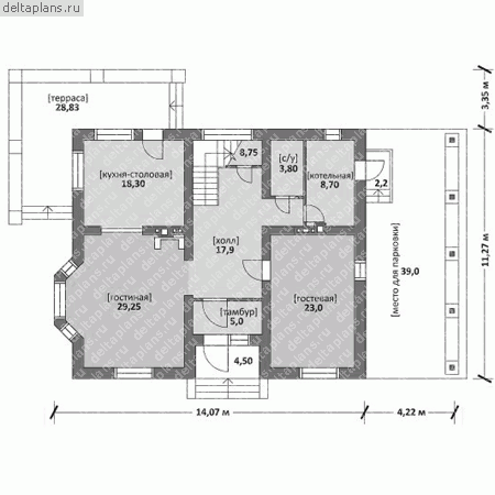
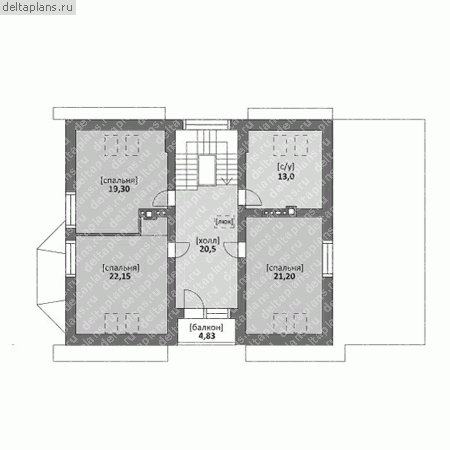
Проект M-234-1P
Застройщик: Юникс-Строй
234.6 м²
1 / 3
🏠
234.6 м²
📐
2 этаж
🧱
Пеноблок
Похожие проекты
Похожие по цене
Похожие по площади
Проект N-200-1K
2 этаж
от 16 424 600 ₽
→
Проект дома из газоблоков 15х12 ГББ-278: цена 10927000 руб.
7 спальн. · 3 санузл. · 2 этаж
от 16 408 000 ₽
→
Проект одноэтажного дома "Нордхаус" из бруса
6 спальн. · 2 этаж
от 16 436 791 ₽
→
Проект U-235-1K
2 этаж
от 19 243 760 ₽
→
Проект одноэтажного коттеджа "Любимый" из газобетона
4 спальн. · 2 этаж
от 10 421 000 ₽
→
Проект V-234-1K
2 этаж
от 19 256 060 ₽
→
На сайт застройщика