Перейти к контенту
Подбор и сравнение проектов домов от застройщиков Московской области
Подборщик домов
Калькулятор сметы
Калькулятор площади
Форум
Блог
Главная
›
Каталог проектов
›
Проект M-246-1D
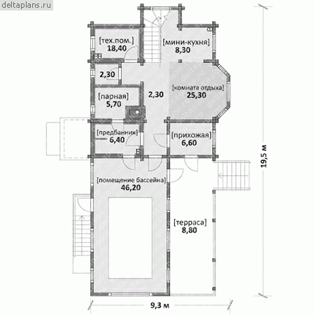
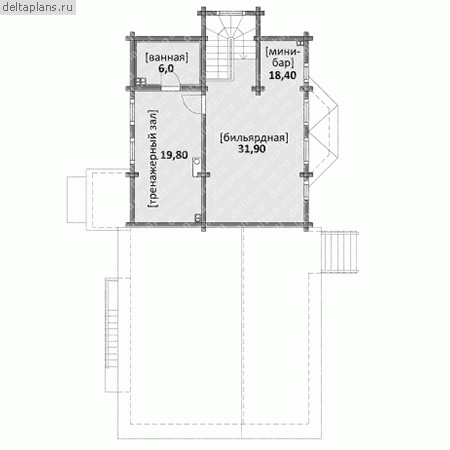
Проект M-246-1D
Застройщик: Юникс-Строй
246.06 м²
1 / 4
🏠
246.06 м²
📐
3 этаж
🧱
Дерево
Похожие проекты
Похожие по цене
Похожие по площади
Проект N-246-1D
3 этаж
от 36 870 000 ₽
→
Проект L-451-1K
3 этаж
от 36 965 600 ₽
→
Проект I-451-1K
3 этаж
от 37 014 800 ₽
→
Проект одноэтажного коттеджа "Виноградный" из газобетона
5 спальн. · 2 этаж
от 10 704 000 ₽
→
Проект одноэтажного каркасного дома "Ио"
3 спальн. · 2 этаж
от 17 603 805 ₽
→
Дом 3 спальни с террасой №373
2 этаж
от 17 768 300 ₽
→
На сайт застройщика