Перейти к контенту
Подбор и сравнение проектов домов от застройщиков Московской области
Подборщик домов
Калькулятор сметы
Калькулятор площади
Форум
Блог
Главная
›
Каталог проектов
›
Проект M-253-1P
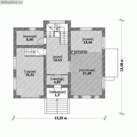
Проект M-253-1P
Застройщик: Юникс-Строй
253.57 м²
1 / 4
🏠
253.57 м²
📐
3 этаж
🧱
Пеноблок
Похожие проекты
Похожие по цене
Похожие по площади
Дом по проекту «ЗС 4-16» - Золотое Сечение
3 спальн. · 2 санузл.
от 17 750 000 ₽
→
Проект U-218-1K
2 этаж
от 17 750 540 ₽
→
Проект T-254-1P
3 этаж
от 17 745 000 ₽
→
Проект M-253-1K
2 этаж
от 20 794 380 ₽
→
Проект двухэтажного коттеджа "Танталас" из газобетона
3 спальн. · 2 этаж
от 10 581 000 ₽
→
Проект дома «Эллиот»
3 спальн. · 1 этаж
от 21 315 000 ₽
→
На сайт застройщика