Перейти к контенту
Подбор и сравнение проектов домов от застройщиков Московской области
Подборщик домов
Калькулятор сметы
Калькулятор площади
Форум
Блог
Главная
›
Каталог проектов
›
Проект M-320-1K
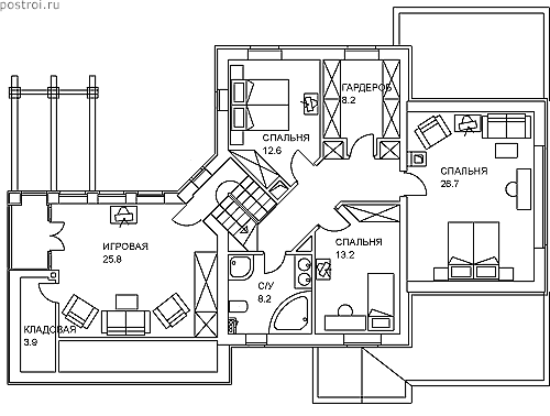
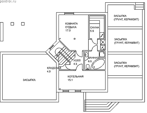
Проект M-320-1K
Застройщик: Юникс-Строй
320.0 м²
1 / 4
🏠
320.0 м²
📐
3 этаж
🧱
Кирпич
Похожие проекты
Похожие по цене
Похожие по площади
Проект A-320-1K
3 этаж
от 26 240 000 ₽
→
Дом по проекту «Эрфурт» - Золотое Сечение
3 спальн. · 2 санузл.
от 26 250 000 ₽
→
Проект A-175-1D
2 санузл. · 2 этаж
от 26 250 000 ₽
→
Проект двухэтажного коттеджа "Наварро" из газобетона
5 спальн. · 2 этаж
от 14 210 000 ₽
→
Проект одноэтажного дома "Брют" из бруса
6 спальн. · 2 этаж
от 22 205 084 ₽
→
Проект одноэтажного дома "Спокойный" из газобетона
4 спальн. · 3 этаж
от 11 240 000 ₽
→
На сайт застройщика