Перейти к контенту
Подбор и сравнение проектов домов от застройщиков Московской области
Подборщик домов
Калькулятор сметы
Калькулятор площади
Форум
Блог
Главная
›
Каталог проектов
›
Проект M-331-1K
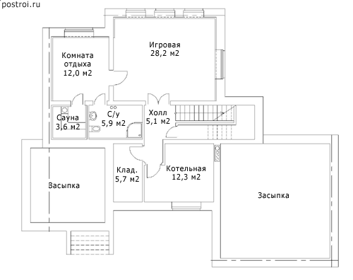
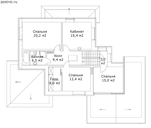
Проект M-331-1K
Застройщик: Юникс-Строй
331.3 м²
1 / 4
🏠
331.3 м²
📐
3 этаж
🧱
Кирпич
Похожие проекты
Похожие по цене
Похожие по площади
Проект M-263-1K
2 этаж
от 27 166 600 ₽
→
Современный коттедж с комбинированным фасадом «Ламия»
2 спальн. · 3 санузл. · 2 этаж
от 27 180 000 ₽
→
Проект D-181-1D
3 этаж
от 27 150 000 ₽
→
Проект M-263-1K
2 этаж
от 27 166 600 ₽
→
Проект W-330-1K
3 этаж
от 27 133 800 ₽
→
Дом в стиле барнхаус «Арлон»
4 спальн. · 2 санузл. · 2 этаж
от 19 920 000 ₽
→
На сайт застройщика