Перейти к контенту
Подбор и сравнение проектов домов от застройщиков Московской области
Подборщик домов
Калькулятор сметы
Калькулятор площади
Форум
Блог
Главная
›
Каталог проектов
›
Проект M-356-1K
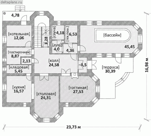
Проект M-356-1K
Застройщик: Юникс-Строй
356.55 м²
1 / 3
🏠
356.55 м²
📐
2 этаж
🧱
Кирпич
Похожие проекты
Похожие по цене
Похожие по площади
Проект U-356-1K
2 этаж
от 29 244 480 ₽
→
Проект J-357-1K
3 этаж
от 29 257 600 ₽
→
Проект F-417-1P
3 этаж
от 29 210 300 ₽
→
Проект U-356-1K
2 этаж
от 29 244 480 ₽
→
Проект H-357-1P
2 этаж
от 24 969 000 ₽
→
Проект J-357-1K
3 этаж
от 29 257 600 ₽
→
На сайт застройщика