Перейти к контенту
Подбор и сравнение проектов домов от застройщиков Московской области
Подборщик домов
Калькулятор сметы
Калькулятор площади
Форум
Блог
Главная
›
Каталог проектов
›
Проект M-371-1K
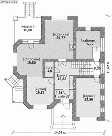
Проект M-371-1K
Застройщик: Юникс-Строй
371.07 м²
1 / 5
🏠
371.07 м²
📐
3 этаж
🧱
Кирпич
Похожие проекты
Похожие по цене
Похожие по площади
Проект W-370-1K
3 этаж
от 30 405 600 ₽
→
Проект W-371-1K
2 этаж
от 30 405 600 ₽
→
Проект M-370-1K
2 этаж
от 30 404 780 ₽
→
Проект «Akron»
4 спальн. · 3 санузл. · 2 этаж
от 18 550 000 ₽
→
2-этажный коттедж «Акрон» в стиле Прерий
4 спальн. · 3 санузл. · 2 этаж
от 22 266 000 ₽
→
Проект A-371-1P
2 этаж
от 25 991 000 ₽
→
На сайт застройщика