Перейти к контенту
Подбор и сравнение проектов домов от застройщиков Московской области
Подборщик домов
Калькулятор сметы
Калькулятор площади
Форум
Блог
Главная
›
Каталог проектов
›
Проект M-396-1K
Проект M-396-1K
Застройщик: Юникс-Строй
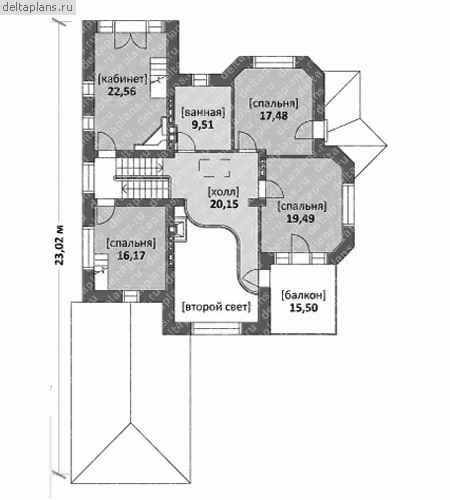
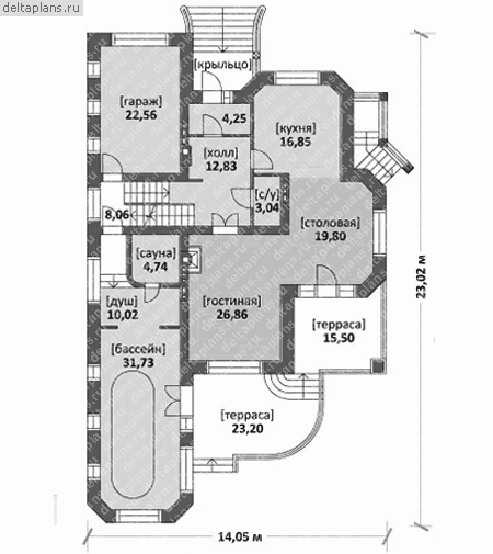
396.34 м²
1 / 5
🏠
396.34 м²
📐
3 этаж
🧱
Кирпич
Похожие проекты
Похожие по цене
Похожие по площади
Проект G-397-1K
3 этаж
от 32 513 000 ₽
→
Проект U-397-1K
3 этаж
от 32 537 600 ₽
→
Проект E-217-1D
2 этаж
от 32 550 000 ₽
→
Проект G-397-1K
3 этаж
от 32 513 000 ₽
→
Проект U-397-1K
3 этаж
от 32 537 600 ₽
→
Акварель
5 спальн. · 4 санузл. · 2 этаж
от 19 882 000 ₽
→
На сайт застройщика