Перейти к контенту
Подбор и сравнение проектов домов от застройщиков Московской области
Подборщик домов
Калькулятор сметы
Калькулятор площади
Форум
Блог
Главная
›
Каталог проектов
›
Проект M-500-1K
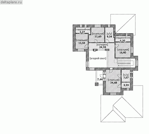
Проект M-500-1K
Застройщик: Юникс-Строй
500.13 м²
1 / 3
🏠
500.13 м²
📐
2 этаж
🧱
Кирпич
Похожие проекты
Похожие по цене
Похожие по площади
Проект K-587-1P
3 этаж
от 41 090 000 ₽
→
Проект E-498-1K
3 этаж
от 40 836 000 ₽
→
Проект J-498-1K
3 этаж
от 40 836 000 ₽
→
Проект дома «Тироль»
4 спальн. · 3 санузл.
от 25 100 000 ₽
→
2-этажный коттедж "Тироль" в стиле «Прерий Райта»
4 спальн. · 3 санузл. · 2 этаж
от 30 132 000 ₽
→
Проект E-498-1K
3 этаж
от 40 836 000 ₽
→
На сайт застройщика