Перейти к контенту
Подбор и сравнение проектов домов от застройщиков Московской области
Подборщик домов
Калькулятор сметы
Калькулятор площади
Форум
Блог
Главная
›
Каталог проектов
›
Проект M-539-1K
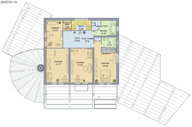
Проект M-539-1K
Застройщик: Юникс-Строй
539.0 м²
1 / 3
🏠
539.0 м²
📐
2 этаж
🧱
Кирпич
Похожие проекты
Похожие по цене
Похожие по площади
Проект A-294-1D
2 этаж
от 44 100 000 ₽
→
Проект D-294-1D
3 этаж
от 44 025 000 ₽
→
Проект D-294-2D
3 этаж
от 44 025 000 ₽
→
Дом с бассейном на улице «Элмонт»
4 спальн. · 4 санузл. · 2 этаж
от 32 376 000 ₽
→
Проект двухэтажного коттеджа "Родовое гнездо" из газобетона
5 спальн. · 2 этаж
от 24 365 000 ₽
→
Проект S-541-1K
3 этаж
от 44 394 800 ₽
→
На сайт застройщика