Перейти к контенту
Подбор и сравнение проектов домов от застройщиков Московской области
Подборщик домов
Калькулятор сметы
Калькулятор площади
Форум
Блог
Главная
›
Каталог проектов
›
Проект N-124-1P
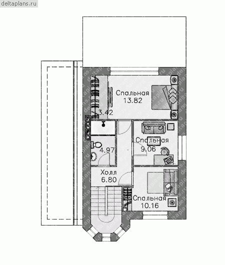
Проект N-124-1P
Застройщик: Юникс-Строй
125.2 м²
1 / 3
🏠
125.2 м²
📐
2 этаж
🧱
Пеноблок
Похожие проекты
Похожие по цене
Похожие по площади
Песня 5
4 спальн. · 2 санузл. · 1 этаж
от 8 764 000 ₽
→
Песня 5
4 спальн. · 2 санузл. · 1 этаж
от 8 764 000 ₽
→
Проект E-125-1P
2 этаж
от 8 764 000 ₽
→
Проект E-125-1P
2 этаж
от 8 764 000 ₽
→
Проект каркасного дома КП-116
1 этаж
от 8 115 000 ₽
→
Проект D-126-1D
2 санузл. · 2 этаж
от 18 765 000 ₽
→
На сайт застройщика