Перейти к контенту
Подбор и сравнение проектов домов от застройщиков Московской области
Подборщик домов
Калькулятор сметы
Калькулятор площади
Форум
Блог
Главная
›
Каталог проектов
›
Проект N-137-1P
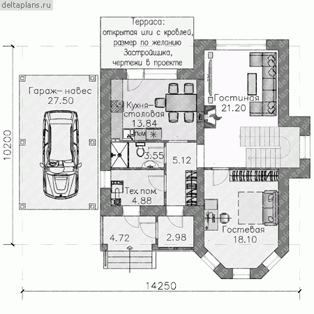
Проект N-137-1P
Застройщик: Юникс-Строй
135.92 м²
1 / 3
🏠
135.92 м²
📐
2 этаж
🧱
Пеноблок
Похожие проекты
Похожие по цене
Похожие по площади
Проект L-136-1P
1 этаж
от 9 514 400 ₽
→
Проект К-225 8 на 17, площадью 288 за 9 510 000 руб
4 спальн. · 2 этаж
от 9 510 000 ₽
→
Проект одноэтажного каркасного дома "Лада"
5 спальн. · 2 этаж
от 9 509 729 ₽
→
Проект L-136-1P
1 этаж
от 9 514 400 ₽
→
Проект дома AS-2086-2
2 этаж
от 5 560 335 ₽
→
Проект одноэтажного дома "Богородский" из бруса
2 спальн. · 2 этаж
от 8 260 996 ₽
→
На сайт застройщика