Перейти к контенту
Подбор и сравнение проектов домов от застройщиков Московской области
Подборщик домов
Калькулятор сметы
Калькулятор площади
Форум
Блог
Главная
›
Каталог проектов
›
Проект N-198-1K
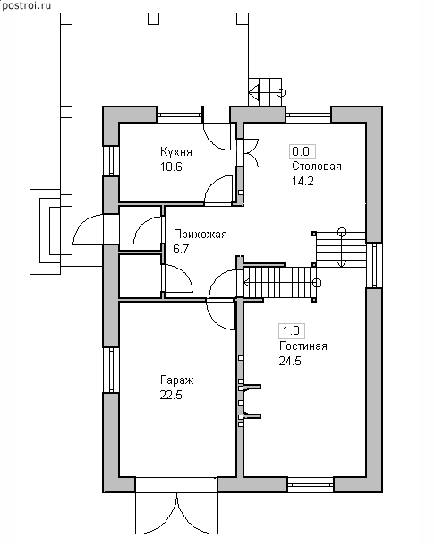
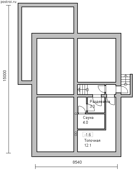
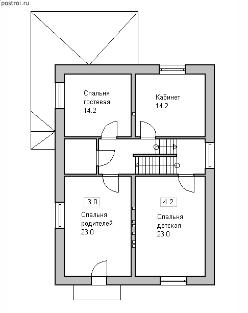
Проект N-198-1K
Застройщик: Юникс-Строй
197.7 м²
1 / 4
🏠
197.7 м²
📐
3 этаж
🧱
Кирпич
Похожие проекты
Похожие по цене
Похожие по площади
Дом из газобетонных блоков С-389 ГБ «Аура»
5 спальн. · 3 санузл. · 2 этаж
от 16 214 000 ₽
→
Дом из керамических блоков С-389 КЕ «Аура»
5 спальн. · 3 санузл. · 2 этаж
от 16 214 000 ₽
→
Проект U-232-1P
3 этаж
от 16 223 900 ₽
→
Проект двухэтажного коттеджа "Цитрин" из газобетона
3 спальн. · 2 этаж
от 6 111 000 ₽
→
Проект одноэтажного дома "Малый Виндзор" из бруса
4 спальн. · 2 этаж
от 13 843 122 ₽
→
Дома из керамических блоков Шале XL под ключ
5 спальн. · 2 санузл. · 2 этаж
от 11 124 800 ₽
→
На сайт застройщика