Перейти к контенту
Подбор и сравнение проектов домов от застройщиков Московской области
Подборщик домов
Калькулятор сметы
Калькулятор площади
Форум
Блог
Главная
›
Каталог проектов
›
Проект N-212-1K
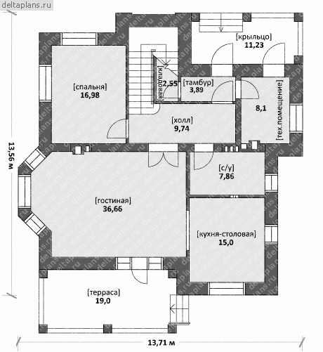
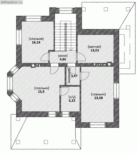
Проект N-212-1K
Застройщик: Юникс-Строй
212.33 м²
1 / 3
🏠
212.33 м²
📐
2 этаж
🧱
Кирпич
Похожие проекты
Похожие по цене
Похожие по площади
Проект U-249-1P
3 этаж
от 17 412 500 ₽
→
Проект A-248-1P
2 этаж
от 17 415 300 ₽
→
Проект A-249-1P
3 этаж
от 17 416 000 ₽
→
Проект U-212-1P
2 этаж
от 14 858 900 ₽
→
Проект дома из газоблоков 16х18 ГББ-213: цена 11583000 руб.
4 спальн. · 3 санузл. · 1 этаж
от 15 037 000 ₽
→
Проект дома из керамоблоков 16х18 ТКБ-213: цена 11878000 руб.
4 спальн. · 3 санузл. · 1 этаж
от 16 169 000 ₽
→
На сайт застройщика