Перейти к контенту
Подбор и сравнение проектов домов от застройщиков Московской области
Подборщик домов
Калькулятор сметы
Калькулятор площади
Форум
Блог
Главная
›
Каталог проектов
›
Проект N-216-1K
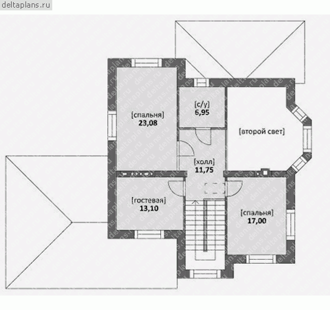
Проект N-216-1K
Застройщик: Юникс-Строй
216.74 м²
1 / 3
🏠
216.74 м²
📐
2 этаж
🧱
Кирпич
Похожие проекты
Похожие по цене
Похожие по площади
Дом 3 спальни с террасой №373
2 этаж
от 17 768 300 ₽
→
Проект U-216-1K
2 этаж
от 17 767 760 ₽
→
Проект A-254-1P
2 этаж
от 17 766 700 ₽
→
Проект дома из газоблоков 21х18 ГББ-218: цена 135920000 руб.
4 спальн. · 2 санузл. · 1 этаж
от 16 956 000 ₽
→
Проект дома из керамоблоков 21х18 ТКБ-218: цена 13816000 руб.
4 спальн. · 2 санузл. · 1 этаж
от 18 362 000 ₽
→
Проект дома H-217-1P
2 этаж
от 15 169 000 ₽
→
На сайт застройщика