Перейти к контенту
Подбор и сравнение проектов домов от застройщиков Московской области
Подборщик домов
Калькулятор сметы
Калькулятор площади
Форум
Блог
Главная
›
Каталог проектов
›
Проект O-231-1K
Проект O-231-1K
Застройщик: Юникс-Строй
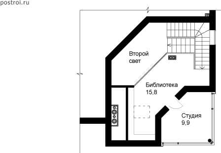
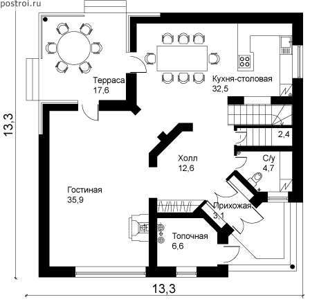
228.45 м²
1 / 4
🏠
228.45 м²
📐
3 этаж
🧱
Кирпич
Похожие проекты
Похожие по цене
Похожие по площади
Проект R-229-1K
2 этаж
от 18 737 000 ₽
→
Проект J-229-1K
1 этаж
от 18 745 200 ₽
→
Проект «Brookland»
5 спальн. · 3 санузл. · 2 этаж
от 18 750 000 ₽
→
Проект G-301-2P
2 этаж
от 15 995 000 ₽
→
Проект M-228-1D
2 этаж
от 34 275 000 ₽
→
Проект R-229-1K
2 этаж
от 18 737 000 ₽
→
На сайт застройщика