Перейти к контенту
Подбор и сравнение проектов домов от застройщиков Московской области
Подборщик домов
Калькулятор сметы
Калькулятор площади
Форум
Блог
Главная
›
Каталог проектов
›
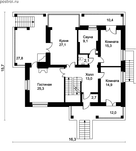
Проект O-387-1K
Проект O-387-1K
Застройщик: Юникс-Строй
387.2 м²
1 / 4
🏠
387.2 м²
📐
3 этаж
🧱
Кирпич
Похожие проекты
Похожие по цене
Похожие по площади
Проект F-387-1K
3 этаж
от 31 750 400 ₽
→
Дом по проекту «ЗС 172-17» - Золотое Сечение
3 спальн. · 2 санузл.
от 31 750 000 ₽
→
Дом по проекту «ЗС 553-19» - Золотое Сечение
2 спальн. · 2 санузл.
от 31 750 000 ₽
→
Проект F-387-1K
3 этаж
от 31 750 400 ₽
→
Проект дома D-387-1P
3 этаж
от 27 111 000 ₽
→
Дом Новосходненский из газобетона: заказать в Москве по низкой цене
4 спальн. · 4 санузл. · 2 этаж
от 16 400 000 ₽
→
На сайт застройщика