Перейти к контенту
Подбор и сравнение проектов домов от застройщиков Московской области
Подборщик домов
Калькулятор сметы
Калькулятор площади
Форум
Блог
Главная
›
Каталог проектов
›
Проект R-142-1P
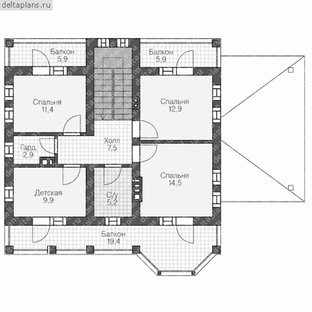
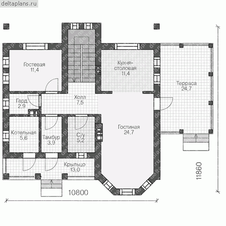
Проект R-142-1P
Застройщик: Юникс-Строй
143.0 м²
1 / 3
🏠
143.0 м²
📐
2 этаж
🧱
Пеноблок
Похожие проекты
Похожие по цене
Похожие по площади
Проект R-143-1P
2 этаж
от 10 010 700 ₽
→
Проект двухэтажного коттеджа "Сахарный" из газобетона
3 спальн. · 2 этаж
от 10 008 000 ₽
→
Проект одноэтажного дома "Аккорд" из бруса
3 спальн. · 2 этаж
от 10 005 252 ₽
→
Проект двухэтажного дома "Ветерок" из бруса
6 спальн. · 2 этаж
от 12 205 352 ₽
→
Проект одноэтажного дома "Сапожок-2" из бруса
2 спальн. · 2 этаж
от 10 240 463 ₽
→
Дом 3 спальни 2 санузла №366
2 этаж
от 8 029 050 ₽
→
На сайт застройщика