Перейти к контенту
Подбор и сравнение проектов домов от застройщиков Московской области
Подборщик домов
Калькулятор сметы
Калькулятор площади
Форум
Блог
Главная
›
Каталог проектов
›
Проект R-155-1P
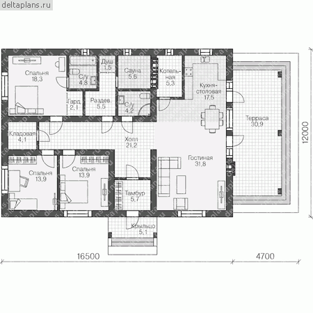
Проект R-155-1P
Застройщик: Юникс-Строй
156.38 м²
1 / 2
🏠
156.38 м²
📐
1 этаж
🧱
Пеноблок
Похожие проекты
Похожие по цене
Похожие по площади
Дома из керамических блоков Бунгало 2 S под ключ
4 спальн. · 2 санузл. · 2 этаж
от 10 944 900 ₽
→
Проект T-153-1P
2 этаж
от 10 949 400 ₽
→
Проект дома из газоблоков 16х9 ГББ-162: цена 6855000 руб.
4 спальн. · 2 санузл. · 2 этаж
от 10 950 000 ₽
→
Проект T-153-1P
2 этаж
от 10 949 400 ₽
→
Император 2
5 спальн. · 3 санузл. · 2 этаж
от 8 673 000 ₽
→
Император 2
5 спальн. · 3 санузл. · 2 этаж
от 8 673 000 ₽
→
На сайт застройщика