Перейти к контенту
Подбор и сравнение проектов домов от застройщиков Московской области
Подборщик домов
Калькулятор сметы
Калькулятор площади
Форум
Блог
Главная
›
Каталог проектов
›
Проект R-155-2P
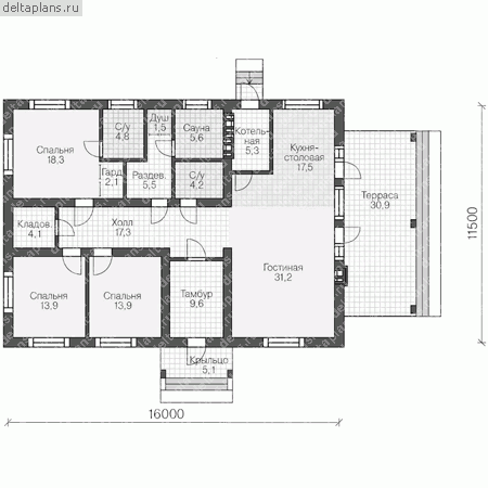
Проект R-155-2P
Застройщик: Юникс-Строй
155.38 м²
1 / 2
🏠
155.38 м²
📐
1 этаж
🧱
Пеноблок
Похожие проекты
Похожие по цене
Похожие по площади
Проект дома "Бейнар"
4 спальн. · 2 этаж
от 10 876 462 ₽
→
Проект дома F-155-1P
2 этаж
от 10 878 000 ₽
→
Проект дома «Павловск» | ЭкоТех
4 спальн. · 2 санузл. · 1 этаж
от 10 881 000 ₽
→
Проект дома F-155-1P
2 этаж
от 10 878 000 ₽
→
Проект U-155-1P
2 этаж
от 10 871 700 ₽
→
Проект L-155-1P
2 этаж
от 10 871 000 ₽
→
На сайт застройщика