Перейти к контенту
Подбор и сравнение проектов домов от застройщиков Московской области
Подборщик домов
Калькулятор сметы
Калькулятор площади
Форум
Блог
Главная
›
Каталог проектов
›
Проект R-173-1P
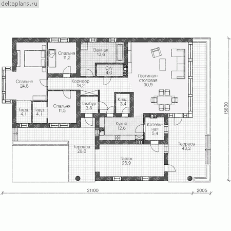
Проект R-173-1P
Застройщик: Юникс-Строй
173.0 м²
1 / 2
🏠
173.0 м²
📐
1 этаж
🧱
Пеноблок
Похожие проекты
Похожие по цене
Похожие по площади
Проект R-170-1P
2 этаж
от 12 110 700 ₽
→
Проект одноэтажного коттеджа "Нобис" из газобетона
3 спальн. · 2 этаж
от 12 111 000 ₽
→
Проект D-081-1D
2 этаж
от 12 105 000 ₽
→
Проект одноэтажного каркасного дома "Лучезар"
4 спальн. · 2 этаж
от 13 017 688 ₽
→
Проект одноэтажного коттеджа "Страдивари" из бруса
4 спальн. · 2 этаж
от 13 840 626 ₽
→
Двухэтажный дом №372
2 этаж
от 11 958 500 ₽
→
На сайт застройщика